Модульный дом
проекта В 54-16
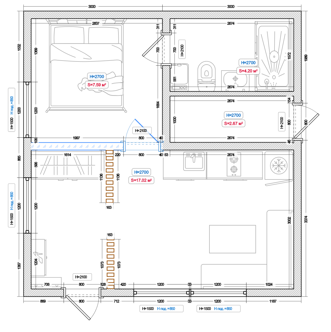
проекта В 54-16
от 600 000 рублей
Общая площадь дома:
53.40 м²
53.40 м²
Полезная площадь:
51.1 м²
51.1 м²
Внешние размеры дома:
8,48 м +7,13 м
8,48 м +7,13 м
Количество спален:
1
Высота потолка:
3.50 м
Угол наклона кровли:
18
Количество этажей:
1
Количество санузлов:
1
Дом "В-54-16" представляет собой дом небольшого размера. Его внутренняя планировка отвечают требованиям для жилья семьи из 3 человек. Благодаря большому остеклению, в доме достаточное количество дневного света.
Мы применяем в работе
- Фундамент
-
Все работы выполняются из экологически чистых материалов, с гарантией качества.
- Свайно винтовой http://baufundament.ru/
- УШП (утепленная шведская плита) https://www.youtube.com/watch
- Каркас
-
Весь используемый материал:
- собственного производства. Срок службы дома с использованием нашего материала увеличивается на 10 лет!
- 1 сорта;
- Полных размеров;
- Материал стен (каркас) из высококачественной доски 1 сорта 150х50мм с шагом стоек не более 600мм, с использованием усиленной крепежной системы и дополнительной защитой каркаса от "мостиков холода".
- Утепление внешних стен: плитный базальтовый утеплитель ROCKWOOL, в 3 слоя (150 мм). Использование данного утеплителя обеспечит дополнительную пожарную безопасность, акустический комфорт и экологичность (это первая теплоизоляция, получившая знак экологической безопасности EcoMaterial Green).
- Лаги перекрытия усиленные, из высококачественной доски 1 сорта 200*50мм с шагом не более 600 мм.
- Утепление пола 1 этажа: плитный базальтовый утеплитель ROCKWOOL, в 4 слоя (200 мм).
- Кровля
-
- Высококачественная металлочерепица (на выбор Заказчика - несколько известных, зарекомендовавших себя производителей).
- Вентиляция - контробрешетка из бруска 50*25 мм, обрешетка из доски 150*25, вентиляционные продухи и решетки.
- Усиленная стропильная система: из высококачественной доски 1 сорта 200*50мм с шагом 600 мм
- Антисептирование + Огнезащита: круговая пропитка стропильной системы, обрешетки, контробрешетки
- Утепление кровельной системы: плитный базальтовый утеплитель ROCKWOOL, с дополнительным утеплением в 4 слоя (200 мм).
- Окна, двери, лестницы
-
- Окна: экологически-чистые деревянные.
- Внешняя дверь: металлическая, утепленная, с двойным напылением, в комплект двери входит фурнитура, замок и глазок.
- Межэтажные и входные лестницы из пиломатериала хвойных пород древесины.
- Отделка
-
- Обустройство ограждения террас, балконов, крыльца
- Отделка откосов дверных и оконных проемов
- Фасад дома: высококачественная евровагонка из хвойных пород северного леса (возможна обшивка имитацией бруса, блок хаусом, сайдингом, клинкерной плиткой).
- Обшивка внутренних стен: Экологически-чистые плиты фибролит GB600 14 мм
- Покрытие пола: ОСП, толщина 18 мм.
- Дополнительное покрытие пола (чистовая отделка) - Ламинат от ведущих производителей с богатым выбором цветов и фактуры.
- Обшивка потолка: высококачественная евровагонка из хвойных пород северного леса. Возможна обшивка имитацией бруса, блок хаусом, фибролитовыми плитами.
Отправьте заявку на расчет сейчас
и получите скидку 7%
Заявка на расчет
Оформив заявку, на ваш номер телефона придет специальный промо- код. Озвучив его нашему менеджеру, Вы получите скидку 7% на строительство своего дома!
Спасибо, ваше желание узнать больше о горе Эльбрус получено.