Здесь и сейчас
c 9 до 20 без выходных
обратный звонок
c 9 до 20 без выходных
Форма обратного звонка

Оставьте нам свои контактные данные и мы перезвоним вам в течении 20 минут

Спасибо, ваша заявка принята
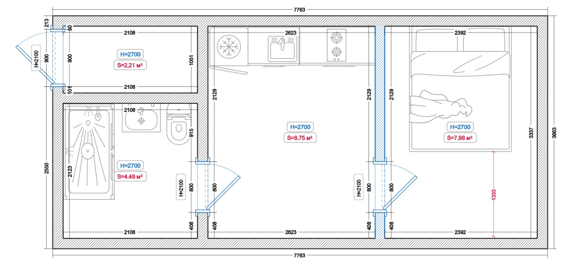
Модульный дом
проекта Р 100-16​
от 1 000 000 рублей
Общая площадь дома:
97,52 м²​
Теплая площадь:
​97,52 м²​​
Общая площадь объекта:
97,52​ м​²​
Количество спален:
2+1​

Высота потолка:
4.4 м

Угол наклона кровли:
22

Количество этажей:
1

Количество санузлов:
2

Разработан в пассивных стандартах и отвечает требованиям , предъявляемым к пассивного дома с удельным потреблением тепловой 15 кВт · ч / m2. Дом будет удовлетворять потребности 3-4 семей членов. 

Южный фасад дома полностью застеклены и , таким образом , гарантировать достаточное количество солнечных успехов в зимних солнечных дней. В летние дни будет использоваться для затенения рулонные шторы. Для большей экономии энергии находятся на конструкции крыши размещены солнечные панели для усиления горячей воды и дайвинг собственного дома.

Мы применяем в работе

Фундамент

Все работы выполняются из экологически чистых материалов, с гарантией качества.

  • Ленточный монолитный железобетонный фундамент сечением 600x300 мм с высотой цоколя 400 мм.
  • Высококачественный бетон марки М350.
  • Арматурный каркас фундамента из арматуры d12 с загибом по углам по усиленной технологии.
  • Песчаная подушка высотой 300мм и шириной 500мм со специальной подготовкой.
  • Двойная гидроизоляция по всему периметру фундамента.
  • Закладка труб для ввода коммуникаций в дом.
  • Подводка внутренней канализации.

* Возможна замена на свайно-винтовой или свайно-ростверквый фундамент

Каркас

Весь используемый материал:

  • собственного производства. Срок службы дома с использованием нашего материала увеличивается на 10 лет!
  • 1 сорта;
  • Полных размеров;
  • Материал стен (каркас) из высококачественной доски 1 сорта 150х50мм с шагом стоек не более 600мм, с использованием усиленной крепежной системы и дополнительной защитой каркаса от "мостиков холода".
  • Утепление внешних стен: плитный базальтовый утеплитель ROCKWOOL, в 3 слоя (150 мм). Использование данного утеплителя обеспечит дополнительную пожарную безопасность, акустический комфорт и экологичность (это первая теплоизоляция, получившая знак экологической безопасности EcoMaterial Green).
  • Лаги перекрытия усиленные, из высококачественной доски 1 сорта 200*50мм с шагом не более 600 мм.
  • Утепление пола 1 этажа: плитный базальтовый утеплитель ROCKWOOL, в 4 слоя (200 мм).
Кровля
  • Высококачественная металлочерепица (на выбор Заказчика - несколько известных, зарекомендовавших себя производителей).
  • Вентиляция - контробрешетка из бруска 50*25 мм, обрешетка из доски 150*25, вентиляционные продухи и решетки.
  • Усиленная стропильная система: из высококачественной доски 1 сорта 200*50мм с шагом 600 мм
  • Антисептирование + Огнезащита: круговая пропитка стропильной системы, обрешетки, контробрешетки
  • Утепление кровельной системы: плитный базальтовый утеплитель ROCKWOOL, с дополнительным утеплением в 4 слоя (200 мм).
Окна, двери, лестницы
  • Окна: экологически-чистые деревянные.
  • Внешняя дверь: металлическая, утепленная, с двойным напылением, в комплект двери входит фурнитура, замок и глазок.
  • Межэтажные и входные лестницы из пиломатериала хвойных пород древесины.
Отделка
  • Обустройство ограждения террас, балконов, крыльца
  • Отделка откосов дверных и оконных проемов
  • Фасад дома: высококачественная евровагонка из хвойных пород северного леса (возможна обшивка имитацией бруса, блок хаусом, сайдингом, клинкерной плиткой).
  • Обшивка внутренних стен: Экологически-чистые плиты фибролит GB600 14 мм
  • Покрытие пола: ОСП, толщина 18 мм.
  • Дополнительное покрытие пола (чистовая отделка) - Ламинат от ведущих производителей с богатым выбором цветов и фактуры.
  • Обшивка потолка: высококачественная евровагонка из хвойных пород северного леса. Возможна обшивка имитацией бруса, блок хаусом, фибролитовыми плитами.
Отправьте заявку на расчет сейчас
и получите скидку 7%